“Build My Church”.
-

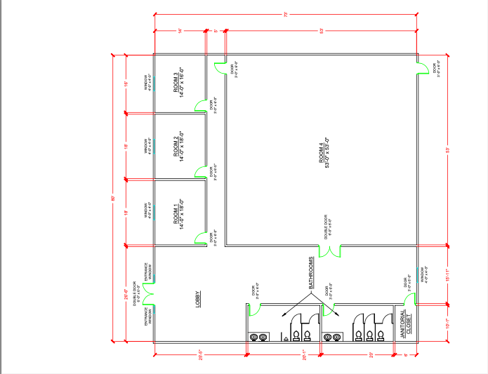
This facility will be a hub of ministry Lord willing, for centuries to come! At 6,150 finished sq. ft. as currently planned, all of our thriving ministries and unimaginably more will take shape here to glorify our Lord Jesus and continue building his church. Countless lives will be changed here as they encounter God’s Word and God’s people!
-

At the heart of the design is a 300-seat auditorium. Surrounding it is a welcoming lobby space designed for gathering and fellowship. Additionally, the Kids Ministry area will feature both small classrooms and larger teaching spaces, giving us greater capacity to disciple and equip the next generation in God’s Word.
WHAT WILL THIS COST?
A conservative estimate for constructing a building is $400,000, which includes construction, site improvements, and interior finishes. We are planning to build an 6,150 sq. ft. facility to meet the needs of our growing church.
THE LOCAL CHURCH IS THE MOST IMPORTANT INSTITUTION IN THE WORLD.
How Can I Get Involved?
PRAY -The church is powered by prayer. If our goal is to see disciples made, that will require radical transformation from the inside out in a way that cannot be manufactured by human effort. It can only be accomplished by God.
“Whatever you ask in my name, this I will do, that the Father may be glorified in the Son. If you ask me anything in my name, I will do it.” John 14:13–14
INVEST -Going back to the time of the Exodus, God has always chosen to build through the generosity of his people! All throughout the Bible, God instructs his people to show generosity in many ways, and especially toward his work!
WAYS TO GIVE